


產品中心
Product Center -
混床
2024-07-09 11:25:41
產品詳情
簡介:
混床是指用來進行離子交換反應的柱狀壓力容器,是管柱法離子交換的交換設備。在實驗室、工業中常被使用。按再生方式分可分為體內再生混床、體外再生混床、陰樹脂外移再生混床三種,在使用范圍上可分為實驗室用離子交換柱、工業用離子交換柱。
工作原理:
混合離子交換,就是把陰、陽離子交換樹脂放置在同一個交換器中,在運行前將它們均勻混合,所以可看成是由無數陰、陽交換樹脂交錯排列的多級式復床,水中所含的陰、陽離子通過交換器,被樹脂交換而得到高度純水。
在混合床中,由于陰、陽樹脂是相互混勻的,所以其陰、陽離子交換反應幾乎同時進行,水的陽離子交換和陰離子交換是多次交錯進行的,由于進入混合床的水質較好,交換器的負載較輕,所以樹脂的交換周期較長。
混合離子交換器采用體內再生法,再生時首先利用兩種樹脂的比重不同,用反洗方式使陰、陽離子交換樹脂完全分離,陽樹脂沉積在下,陰樹脂浮在上面,然后陽樹脂用HCL再生,陰樹脂用NaOH再生。
應用:
混合離子交換器主要應用于鍋爐、熱電站、化工、輕工、紡織、醫藥、生物、電子、原子能等需要高純水的制備
技術參數:
工作壓力:≤0.6MPa
工作溫度:5℃~50℃
運行流量:6.0t/h~500t/h
規格:Φ400~Φ3600
進水品質:電導率<10μS/cm
出水品質:出水電導率<0.2μS/cm。
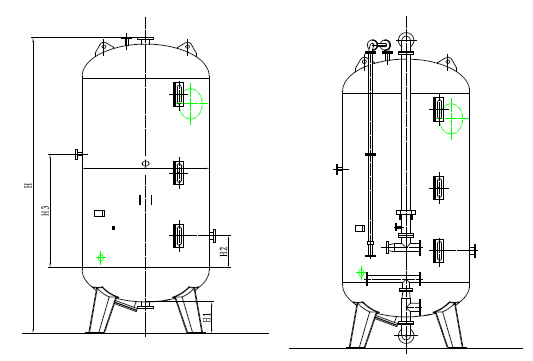
設備照片:

混床

混床尺寸規格表:

遼寧一諾環境產業集團有限公司
地址:遼寧省北票市經濟技術開發區一諾環保產業園
電話:400-082-9898
手機:18842199977
給我們留言
掃一掃,關注我們
Copyright ? 2020 All Rights Reserved. 遼寧一諾環境產業集團有限公司版權所有 遼ICP備19012322號-3